Виста
Просторный двухэтажный дом из клееного бруса с террасой и гаражом. Особенностью проекта являются 4 спальни, большая гостиная, гараж и протяженная крытая терраса с летней кухней.
| Общая площадь | 271,55 м2 | 
| Этажи | 2 | 
| Кол-во спален | 4 | 
| Для семьи до | 8 | 
1 этаж
| Столовая-гостиная | 49.82 м2 | 
| Кухня | 13.65 м2 | 
| Холл | 16.20 м2 | 
| Прихожая | 5.85 м2 | 
| Тамбур | 7.02 м2 | 
| Спальня | 14.00 м2 | 
| Бойлерная | 13.30 м2 | 
| С/у | 14.40 м2 | 
| Гараж | 21.66 м2 | 
| Терраса | 34.30 м2 | 
| Итого | 190,2 м2 | 
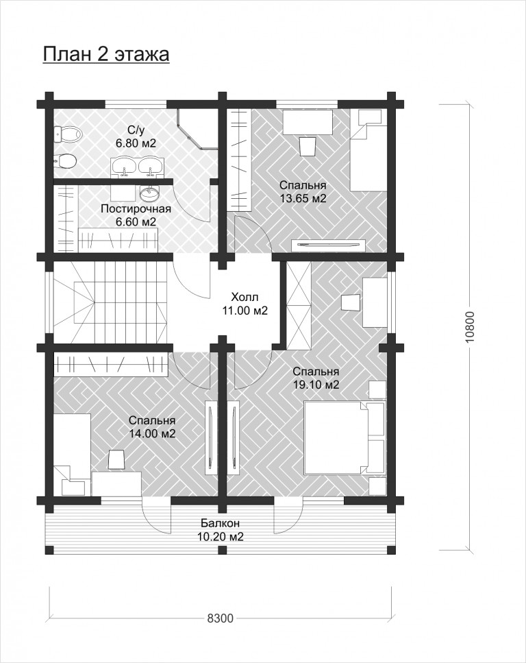
2 этаж
| Спальня | 19.10 м2 | 
| Спальня | 14.00 м2 | 
| Спальня | 13.65 м2 | 
| Холл | 11.00 м2 | 
| Постирочная | 6.60 м2 | 
| С/у | 6.80 м2 | 
| Балкон | 10.20 м2 | 
| Итого | 81,35 м2 | 
 
 
 
 
 
 
 
 
1 этаж
           
      2 этаж
           
      