Премьер
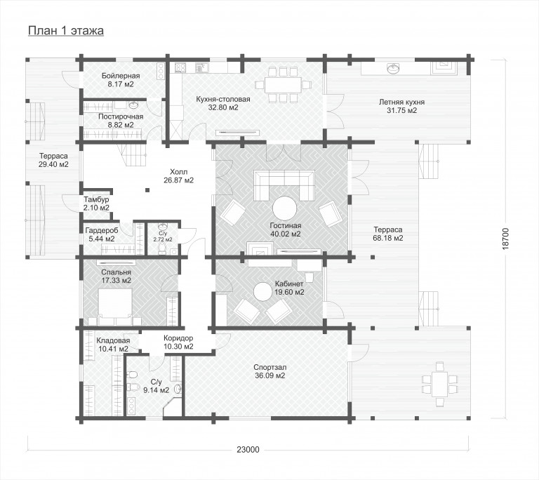
Проект Премьер — это двухэтажный загородный особняк в стиле шале площадью 556 м2 с 4 спальнями на первом этаже и гостевой комнатой на первом, спортзалом, рабочим кабинетом, кладовой, постирочной и бойлерной, большой гостиной, кухней-столовой, летней кухней и просторной террасой с зоной отдыха.
Как заказать загородный коттедж или дачный дом из клееного профбруса
Чтобы оформить заказ или узнать подробнее о толщине клееного бруса для строительства дома, свяжитесь с нами по телефону или напишите нам на e-mail.
| Общая площадь | 556 м2 | 
| Этажи | 2 | 
| Кол-во спален | 5 | 
| Для семьи до | 10 | 
1 этаж
| Гостиная | 40.02 м2 | 
| Кухня-столовая | 32.80 м2 | 
| Спальня | 17.33 м2 | 
| Кабинет | 19.60 м2 | 
| Холл | 26.87 м2 | 
| Тамбур | 2.10 м2 | 
| С/у | 2.72 м2 | 
| Гардероб | 5.44 м2 | 
| Постирочная | 8.82 м2 | 
| Бойлерная | 8.17 м2 | 
| Спортзал | 36.09 м2 | 
| Коридор | 10.30 м2 | 
| С/у | 9.14 м2 | 
| Кладовая | 10.41 м2 | 
| Терраса | 29.40 м2 | 
| Терраса | 68.18 м2 | 
| Летняя кухня | 31.75 м2 | 
| Итого | 359,14 м2 | 
2 этаж
| Спальня | 31.32 м2 | 
| Спальня | 23.45 м2 | 
| Спальня | 19.60 м2 | 
| Спальня | 14.97 м2 | 
| С/у | 16.58 м2 | 
| С/у | 9.84 м2 | 
| С/у | 10.73 м2 | 
| Коридор-гардероб | 13.47 м2 | 
| Холл | 29.71 м2 | 
| Балкон | 27.18 м2 | 
| Итого | 196, 85 м2 | 
 
 
 
 
 
 
 
 
1 этаж
           
      2 этаж
           
      