Версаль
Роскошь и простор данного дома из клееного бруса не оставят никого равнодушным. Большие площади помещений с легкостью позволят разместить многочисленную компанию друзей или родственников. Каждая из пяти спальных комнат имеет собственный санузел, гардероб и балкон.
| Общая площадь | 760,67 м2 |
| Этажи | 2 |
| Кол-во спален | 5 |
| Для семьи до | 10 |
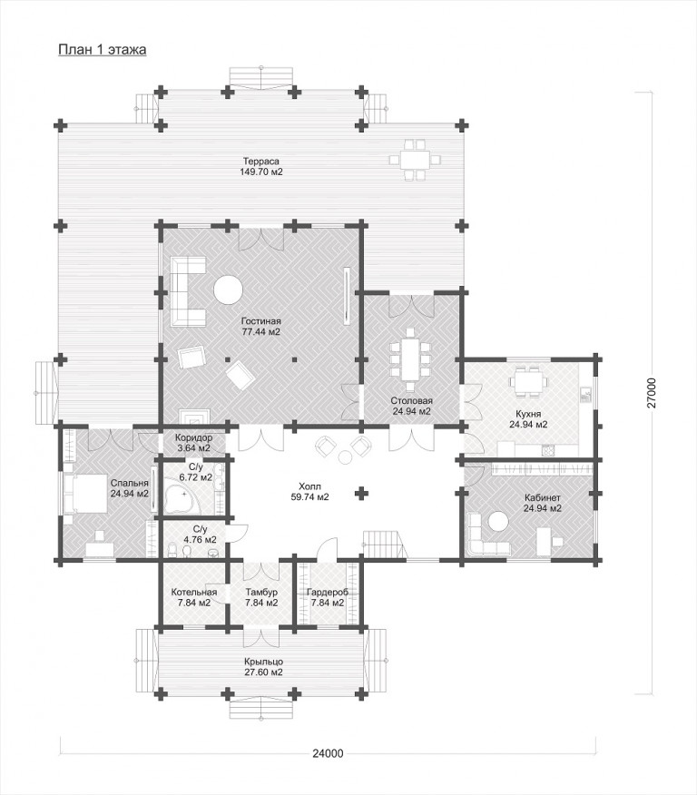
1 этаж
| Гостиная | 77.44 м2 |
| Столовая | 24.94 м2 |
| Кухня | 24.94 м2 |
| Холл | 59.74 м2 |
| Кабинет | 24.94 м2 |
| Спальня | 24.94 м2 |
| Коридор | 3.64 м2 |
| С/у | 6.72 м2 |
| С/у | 4.76 м2 |
| Котельная | 7.84 м2 |
| Тамбур | 7.84 м2 |
| Гардероб | 7.84 м2 |
| Крыльцо | 27.60 м2 |
| Терраса | 149.70 м2 |
| Итого | 452,88 м2 |
2 этаж
| Спальня | 51.05 м2 |
| Спальня | 33.64 м2 |
| Спальня | 24.94 м2 |
| Спальня | 24.94 м2 |
| Холл | 59.74 м2 |
| Гардероб | 16.24 м2 |
| Гардероб | 7.91 м2 |
| Гардероб | 7.84 м2 |
| Гардероб | 5.81 м2 |
| Тамбур | 7.84 м2 |
| Постирочная | 12.04 м2 |
| С/у | 12.04 м2 |
| С/у | 7.91 м2 |
| С/у | 7.84 м2 |
| С/у | 5.81 м2 |
| Балкон | 4.80 м2 |
| Балкон | 6.45 м2 |
| Балкон | 6.75 м2 |
| Балкон | 4.20 м2 |
| Итого | 307,79 м2 |
1 этаж
2 этаж
