Кантри
Проект Кантри — это двухэтажный особняк в американском стиле со вторым светом, большой террасой и двумя входами. В доме запроектирована мастер-спальня, две детских, гостевая комната, рабочий кабинет, гостиная, большая кухня-столовая с арочным проходом и вместительной кладовой, гардеробные, прихожая, бойлерная с выходом на улицу.
Как заказать зимний дом из клееного бруса
Чтобы оформить заказ, получить консультацию специалиста, уточнить стоимость дома из клееного бруса под отделку или «под ключ», свяжитесь с нами по телефону или напишите на электронную почту.
| Общая площадь | 258,93 м2 |
| Размер бруса | 180*200 мм |
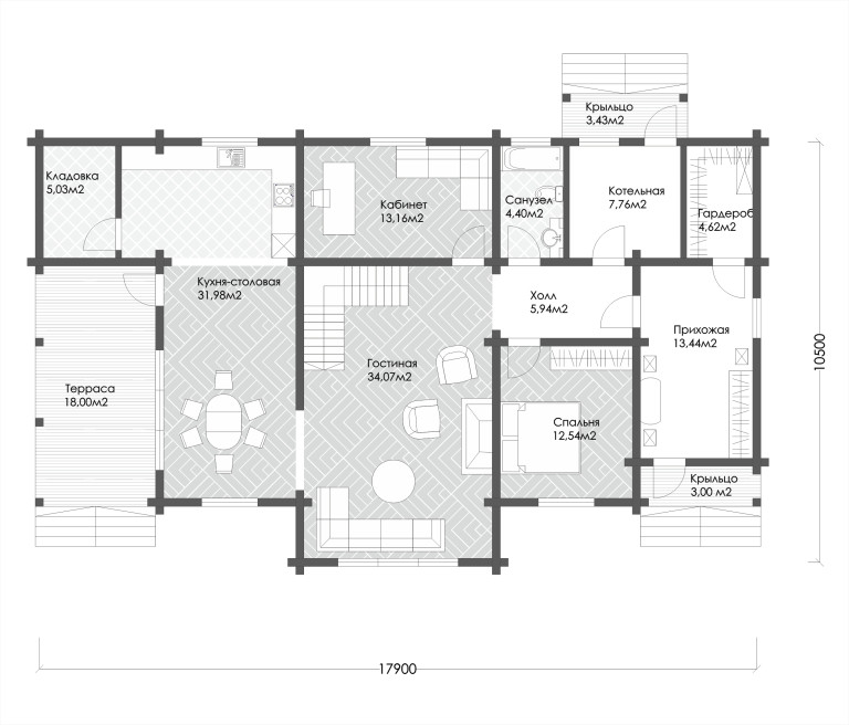
| Габариты в крайних осях | 17,9 х10,5м |
| 1 этаж | |
| Гостиная | 34,07 м2 |
| Кухня-столовая | 31,98 м2 |
| Кабинет | 13,16 м2 |
| Санузел | 2,88 м2 |
| Спальня | 12,54 м2 |
| Кладовка | 5,03 м2 |
| Котельная | 7,76 м2 |
| Прихожая | 13,44 м2 |
| Гардероб | 4,62 м2 |
| Санузел | 4,40 м2 |
| Холл | 5,94 м2 |
| Терраса | 18,00 м2 |
| Крыльцо | 3,43 м2 |
| Крыльцо | 3,00 м2 |
| Итого: | 160,22 м2 |
| 2 этаж | |
| Спальня | 16,64 м2 |
| Спальня | 15,84 м2 |
| Спальня | 12,54 м2 |
| Холл | 18,00 м2 |
| Гардероб | 5,08 м2 |
| Санузел | 6,02 м2 |
| Санузел | 6,42 м2 |
| Кладовая | 6,42 м2 |
| Второй свет | 11,75 м2 |
| Итого: | 98,71 м2 |
1 этаж
2 этаж
