Лесной мотив
| Общая площадь: | 388,00 м² |
| Этажи: | 2 |
| Для семьи до: | 10 |
| Кол-во спален: | 4 |
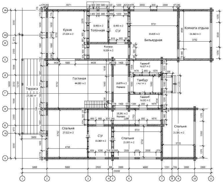
| 1 этаж | |
| Кухня | 27,32 м2 |
| Топочная | 8,50 м2 |
| С/у | 8,50 м2 |
| Бильярдная | 33,03 м2 |
| Комната отдыха | 21,56 м2 |
| Терраса | 27,28 м2 |
| Гостиная | 44,58 м2 |
| Гардероб | 6,13 м2 |
| Тамбур | 7,43 м2 |
| Гардероб | 6,13 м2 |
| Коридор | 33,80 м2 |
| Спальня | 27,52 м2 |
| Спальня | 21,50 м2 |
| Спальня | 21,58 м2 |
| С/у | 10,37 м2 |
| Итого: | 305.23 м2 |
| 2 этаж | |
| С/у | 7,97 м2 |
| Балкон | 4,38 м2 |
| Спальня | 33,08 м2 |
| Второй свет | 37,40 м2 |
| Итого: | 82.83 м2 |
1 этаж
2 этаж
